Projeto de Acessibilidade
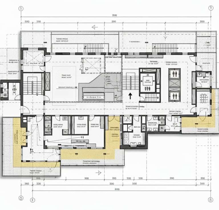
O Projeto de Acessibilidade é essencial para criar ambientes inclusivos e em conformidade com a NBR 9050 e demais legislações técnicas vigentes. Nossas soluções garantem autonomia e segurança para pessoas com deficiência ou mobilidade reduzida em qualquer tipo de espaço.
Desenvolvemos projetos personalizados para construções novas e existentes, contemplando circulações internas e externas, sanitários acessíveis, sinalização tátil e visual e demais requisitos técnicos.
Esse serviço inclui:
· Diagnóstico do espaço e mapeamento das necessidades específicas de acessibilidade.
· Desenvolvimento de soluções técnicas em conformidade com as normas
· Projeto executivo completo incluindo desenhos técnicos e especificações para execução das adaptações
· Planilha orçamentária, cronograma de obras e memorial descritivo.




